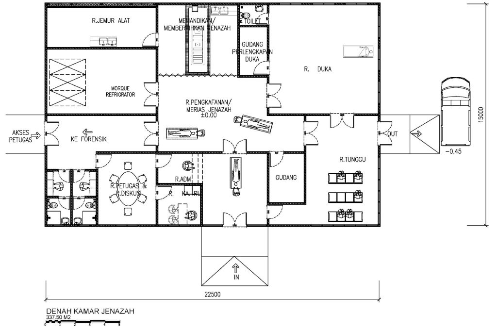
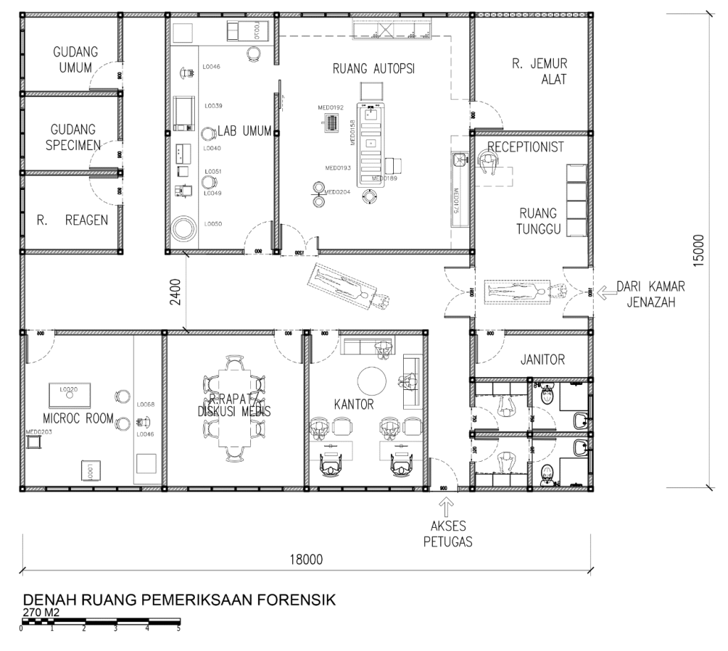
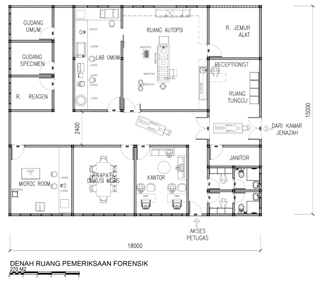
Secara umum kamar jenazah berfungsi sebagai ruangan perletakan/ penyimpanan sementara, ruang pemulasaraan jenazah dan ruang pemeriksaan forensik jenazah.
Persyaratan umum ruangan sementara pemukasaraan jenazah sebagai berikut:
- Lokasi: Letak kamar jenazah harus memiliki akses langsung dengan ruang gawat darurat, ruang kebidanan, ruang rawat inap, ruang operasi dan ruang perawatan intensif
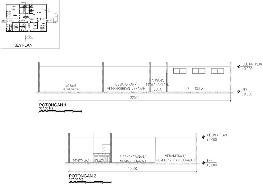
Alur Kegiatan















sumber
Medikolegal, K. K. I. B. D. S. F. D. (2024, April 7). Update Desain Teknis Pemulasaran Jenazah dan Ruang Otopsi di Rumah Sakit tahun 2024. Dr. Galih Endradita M. https://galihendradita.wordpress.com/2024/04/07/update-desain-teknis-pemulasaran-jenazah-dan-ruang-otopsi-di-rumah-sakit-tahun-2024/